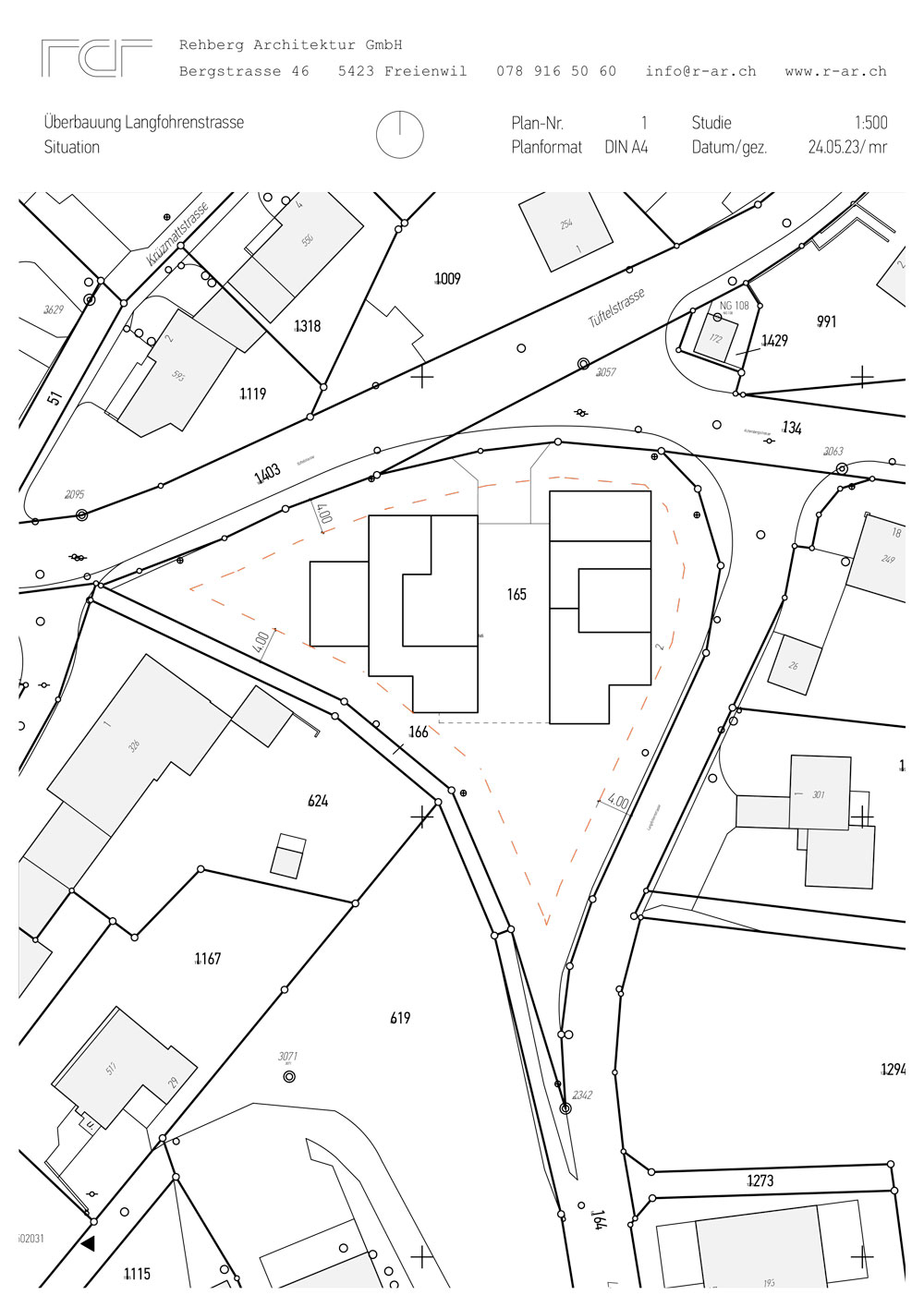
Laufende Projekte

Aktuelles

Erfahren Sie hier mehr über unsere aktuell bestehenden Projekte. Sollten Sie Fragen haben, rufen Sie gern an oder schreiben Sie uns eine E-Mail

Kontakt aufnehmen
Pfeil nach unten

Klingnau

Terrassenwohnungen 3 Einheiten 

Koblenz

8 Einheiten

Kleindöttingen (abgeschlossen)

Kernsanierung 

3 1/2 Zimmerwohnung 

Leuggern

Umbau Kernsanierung 

Einfamilienhaus auf 3 Familienhaus

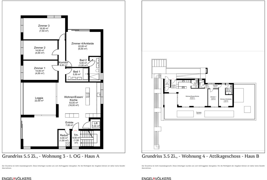
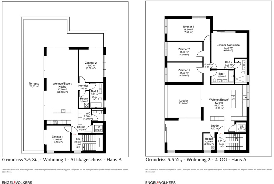
Sonnenrein Döttingen

Terrassenwohnungen
Baubeginn 2022

Pläne

Leibstadt Ölhof 1 (Abgeschlossen)

1 EFH

- Moderne Innenausstattung
- Renoviert 
- Großer Garten & Sonnen Terrasse
- Grundstückfläche 720 m²
- Baubeginn 2021

 

Leibstadt Ölhof 2

1 EFH | 2 DFH


- Moderne Architektur 
- Grundstücksfläche 1980 m²
- Baubeginn 2021

 

Döttingen (abgeschlossen)

2 Eigentumswohnungen 


Grossmattenring 21, 5312 Döttingen
Baubeginn 2020